
RIF. 1003-263L
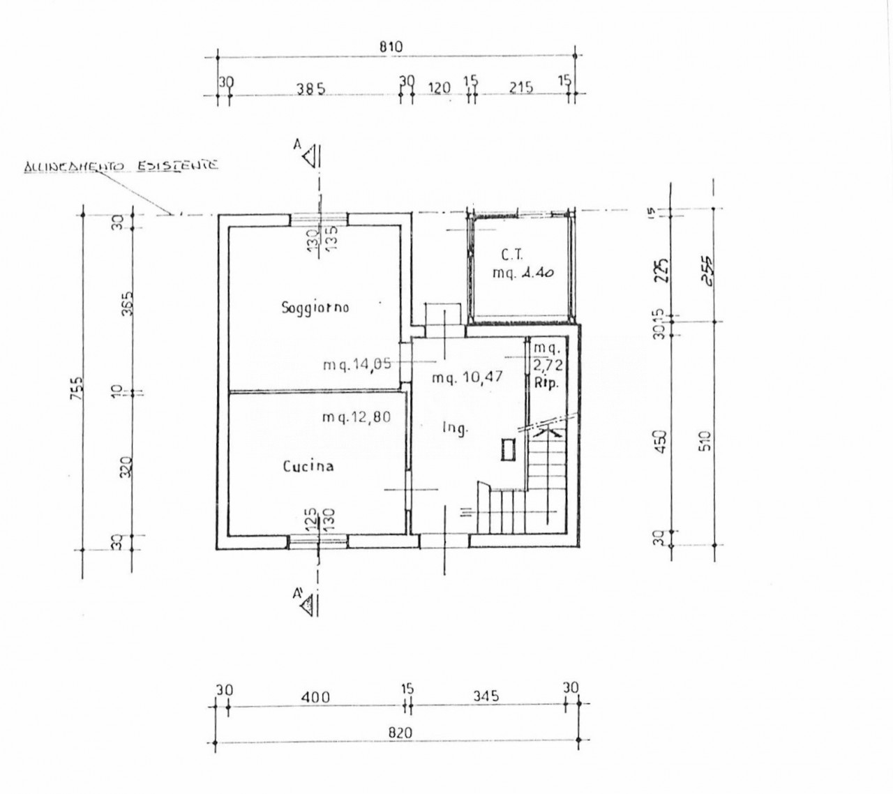
Casa a solo di mq.112 c. sviluppati su due livelli con al piano terra ampio ingresso, ripostiglio/sottoscala, cucina, soggiorno, centrale termica, resede di mq.38 c. fronte/retro.
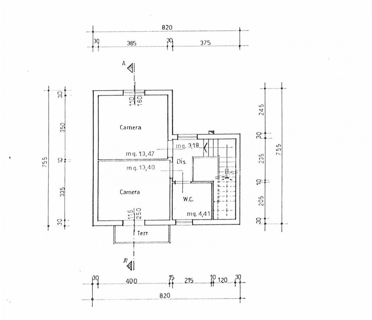
Al piano primo disimpegno, n°2 camere di cui una con terrazzo, bagno.
L’abitazione si trova a pochi passi dal centro di Vinci, in una tranquilla zona di campagna non isolata.
È subito abitabile oppure, con qualche intervento di rimodernamento, può essere facilmente personalizzata secondo i propri gusti.
Una soluzione ideale per chi cerca ind .. Continua ipendenza e quiete, senza rinunciare alla comodità dei principali servizi, raggiungibili in pochi minuti.
Caratteristiche:
enel, acquedotto, gas metano con caldaia tradizionale del 2024, termosifoni in ghisa, proprietà recintata, struttura in muratura, tetto in laterocemento ed impermeabilizzato, gronde in rame, fosse biologiche tricamerali, pompa per lo scarico della lavatrice, degrassatore.
Distanze principali:
Servizi principali mt 950
Empoli Km 11
Lamporecchio Km 6
Cerreto Guidi Km 6
Strada di grande comunicazione fi-pi-li Km 11
Aeroporto di Firenze Km 40
Aeroporto di Pisa Km 56
Mare Km 66 Nascondi